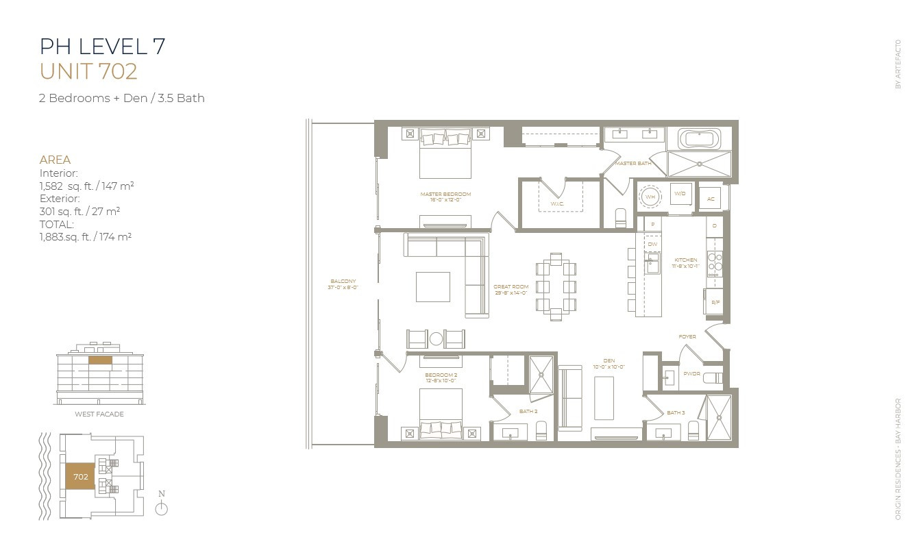
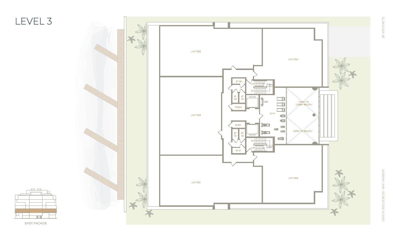
Origin Residences Origin Residences Facts Origin Residences Origin Residences Common Areas Origin Residences Units Origin Residences Floor Plans 31 de October de 2024 Pre-Construction Bal Harbor pre- construction, bal harbor projects, miami new projects, miami nuevas construcciones, miami pre-construction, miami pre-lançamento, Origin-Residences, projetos em bal harbor by André Martins 0 0